海灣JTY-GXF-GST2D吸氣式感煙火災探測器接線安裝技術
特點
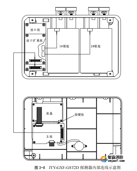
? 占 2 個地址編碼點,每個編碼點對應一個模組(模組指的是探測器中用來實現空氣采樣、 分析的組件,該組件會根據采樣、分析的結果報故障、火警等信息),可實現分區控制。
? 總線故障時可正常工作。
? 4 種吸氣強度可選擇。
? 兩個模組可分別設置的參數:靈敏度、風速上下限等。
? 前殼可旋轉 180°安裝,方便不同進管方向調試。
? 可顯示當前采集參數:煙霧值、風速流量等。
? 有實時時鐘,可根據記錄查看報警、報故障時間。
? 4 個火警級別,及相關的火警繼電器輸出,1 個故障繼電器輸出。
? 火警記錄單獨存儲,可存儲 999 條;運行記錄可存儲 999 條。
主要技術指標
工作電壓:總線電壓:24V,允許范圍 16V~28V;
電源電壓:DC24V,允許范圍 DC20V~DC28V
工作電流:總線:監視電流≤0.6mA,報警電流≤0.6mA DC24V:監視電流≤680mA,報警電流≤730mA。
繼電器輸出:2A@30VDC;0.5A@125VAC
執行標準:GB 15631-2008
聯網方式:485 接口,MODBUS 協議
信息存儲容量:火警記錄 999 條,運行記錄 999 條
單管最大采樣長度:100 米
采樣回路數目:1 個/2 個(可設置) 工作溫度范圍:-10℃~55℃
工作濕度范圍:相對濕度 10%~95%,,不凝露
外形尺寸:330mm×215mm×115mm(長×寬×高,寬度為不含進出氣管的尺寸)
重量:3.3kg
外殼材質:ABS,金屬 IP
防護等級:IP30
結構特征、安裝與布線


安裝示意圖如圖 3-9,安裝掛板尺寸如圖 3-10 所示。
安裝步驟如下:
1) 首先將掛板固定在墻壁上。
2) 然后撬開上蓋下方的兩個橡膠塞,用螺絲刀松開螺釘,向上推上蓋,即可拆下。
3) 將箱體掛在安裝掛板上(箱體背部的 U 型部位對準掛板上的兩個掛鉤)。
4) 接上所有線路。
5) 將上蓋與箱體掛接(上蓋上的三個掛鉤與箱體上的三個長方槽對正掛好)。
6) 擰緊固定上蓋的兩個螺釘,蓋上橡膠塞。


海灣消防公司主營:海灣消防報警系統銷售,消防設備安裝,海灣氣體滅火、海灣電氣火災、消防水噴淋系統施工安裝,售后維修,海灣消防網站:http://www.ecplay.com.cn/;海灣消防服務熱線:4006-598-119
本頁關鍵詞:海灣JTY-GXF-GST2D吸氣式感煙火災探測器接線安裝技術
上一篇:海灣JTY-GXF-GST1D吸氣式感煙火災探測器接線安裝技術 下一篇:海灣JTW-LD-GST85A纜式線型感溫火災探測器接線技術安裝


蘇公網安備32058102002147號